
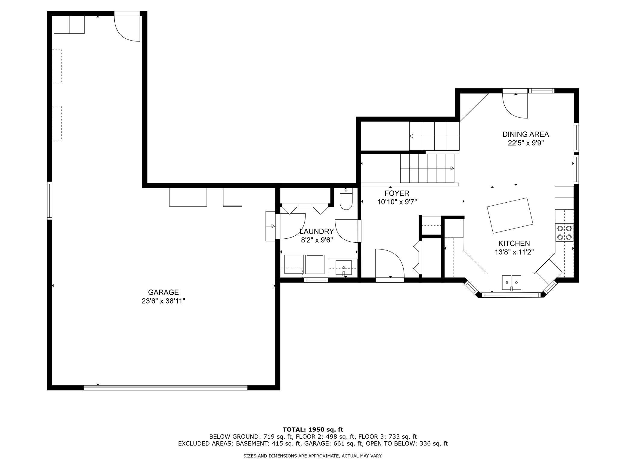
Inviting 3 bed, 2 bath tri-level nestled on a nearly 1/2 acre wooded lot in the desirable, well-established Woodlawn Estates addition of Sartell. Offering a functional layout with ample outdoor space, it’s full of potential and ready for your personal touch. The main level features a bright kitchen and dining area with granite countertops, center island, and large windows that fill the space with natural light. A French door leads from the dining room to a spacious deck overlooking the private backyard—perfect for summer barbecues or relaxing evenings. Also, off the garage entrance includes a laundry room with washer/dryer, sink, toilet, and generous closet space. The upper level includes a living room and two bedrooms, the primary having a walk-in closet as well as a convenient pass through to a full bath. The lower level offers a warm and inviting family room with gas fireplace, an additional bedroom, office, ¾ bath, and plenty of extra storage space tucked beneath the main level and stairs. The attached garage is insulated, sheet rocked and painted. Additional storage space in the garage attic. Truly a must see! Set up your showing today!
Data services provided by IDX Broker
| Price: | 331000 |
| Address: | 603 20th Street N |
| City: | Sartell |
| County: | Stearns |
| State: | Minnesota |
| Subdivision: | Woodlawn Estates |
| MLS: | 6686983 |
| Square Feet: | 1,933 |
| Acres: | 0.46 |
| Lot Square Feet: | 0.46 acres |
| Bedrooms: | 3 |
| Bathrooms: | 3 |
| Half Bathrooms: | 1 |
